Anmelden Registrieren
Van Gallery Daktari Technik Elektrik Stromplan La Strada
Erweiterte Suche
Diashow ansehen Diashow ansehen (Vollbild)

Elektrik

1. Hupe ... 11. Ladegerät... 12. Ladegerät... 13. SDC18331 14. Stromplan... 15. Mercedes... 16. WP_20141215... 17. Marderschad... ... 21. Ladegerät...

Zufallsbild

tw0003

tw0003

Datum: 04.06.2008 Betrachtet: 2229 mal

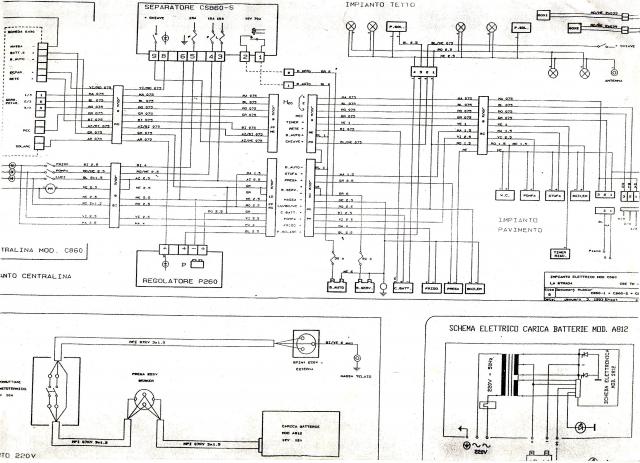
Stromplan La Strada

Datum: 28.06.2013
Größe:
Vollgröße: 2292x1659
nächsteletzte
erste vorherige
Stromplan La Strada
nächsteletzte
erste vorherige
Powered by Gallery v2.3